不動産情報
秋田県宅地建物取引業協会会員 秋田県知事(4)第2096号
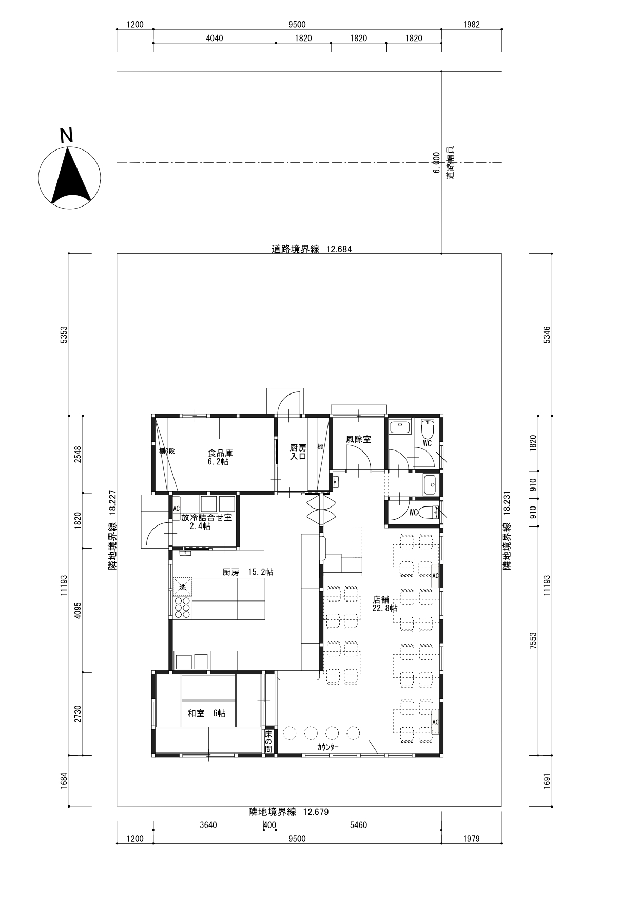
東能代 売家(鰄渕字一本柳)
| 販売価格 | 価格 15,000,000円(税込) 築年月 平成20年築(築18年) 構造 木造亜鉛メッキ鋼板葺平屋建 建物面積 102.96㎡(31.14坪) 土地面積 231.17㎡(69.92坪) |
|---|---|
| 所在地 | 秋田県能代市鰄渕字一本柳104-8 |
| 地目 | 種別/店舗 |
| 用途地域 | 準工業地域 |
| 建ぺい率/容積率 | 60%/200% |
| 道路 | 北側・公道(幅員6m) 間口13.5m |
| 設備 | 上水道・公共下水 業務用キッチン・業務用冷蔵庫 |
| 学区 | 第五小学校・東中学校 |
| 交通 | JR奥羽本線東能代駅から1.1キロ(徒歩14分)/秋北バス 鰄渕から0.5キロ(徒歩7分) |
| 取引形態 | 一般媒介 |
| その他 | ・飲食店として利用していたため、お風呂がついておりません。 ・現状引き渡し(相談可) ・内覧可能です |
秋田県宅地建物取引業協会会員 秋田県知事(4)第2096号
東能代 売地(鰄渕字一本柳)
| 販売価格 | 価格 4,680,000円 坪単価 60,000円 面積 258.06㎡(78.06坪)
|
|---|---|
| 所在地 | 秋田県能代市鰄渕字一本柳 |
| 販売区画数 | 1区画 |
| 地目 | 宅地 |
| 用途地域 | 準工業地域 |
| 建ぺい率/容積率 | 60%/200% |
| 道路 | 南側・公道(幅員6m) 間口13.5m |
| 設備 | 上水道・公共下水引込渡し |
| 学区 | 第五小学校・東中学校 |
| 交通 | JR奥羽本線東能代駅から1.1キロ(徒歩14分)/秋北バス 鰄渕から0.5キロ(徒歩7分) |
| 取引形態 | 売主 |
秋田県宅地建物取引業協会会員 秋田県知事(4)第2096号
能代市字新山前 売地(商談中)
| 販売価格 | 価格 4,224,000円 坪単価 55,000円 面積 253.91㎡(76.80坪) |
|---|---|
| 所在地 | 秋田県能代市字新山前 |
| 地目 | 宅地 |
| 用途地域 | 第一種中高層住居専用地域 |
| 建ぺい率/容積率 | 60%/200% |
| 道路 | 角地 ①南側・公道(幅員8m) 間口12.5m ②東側・公道(幅員5.8m)間口10.5m |
| 設備 | 上水道 |
| 学区 | 第四小学校/能代第二中学校 |
| 交通 | JR奥羽本線東能代駅から1.38キロ(徒歩17分)/秋北バス 仁井田から0.8キロ(徒歩10分) |
| 取引形態 | 専任媒介 |
| その他 | ・現状渡し ・商業施設が近く、利便性のいいエリアです。 |
秋田県宅地建物取引業協会会員 秋田県知事(4)第2096号
秋田県能代市落合字上釜谷地 売地
| 販売価格 | 価格 2,000,000円 面積 391㎡(118.27坪)
|
|---|---|
| 所在地 | 秋田県能代市落合字上釜谷地234 |
| 地目 | 宅地 |
| 用途地域 | 第一種中高層住居専用地域 |
| 建ぺい率/容積率 | 60%/200% |
| 道路 | 市道(幅員12m) 間口18.5m |
| 設備 | 上水道引込無し、合併浄化槽 |
| 学区 | 向能代小学校/東雲中学校 |
| 交通 | JR五能線向能代駅から2.32キロ(徒歩29分)/秋北バス 能代厚生医療センター前から0.9キロ(徒歩12分) |
| 取引形態 | 一般媒介 |
| その他 | 前面道路が広く、閑静な住宅街です。 |








